Overblik: Her er hvad vi ved om it-giganternes danske datacenterplaner

Apple, Google og Facebook har alle danske datacenter-planer. Vi har sammenlignet dem.

Artikel top billede

Tre af verdens største it-virksomheder har planer om at opføre nye store datacentre i Danmark. 

Apple er allerede i fuld gang med at opføre et datacenter i Viborg, Facebook er så småt begyndt på at opføre et datacenter i Odense, og Google har opkøbt en datacentergrund ved Fredericia.

Vi har taget et kig på tre projekter. 

Læs også: Sådan gik det til, da Googles hemmelige 'Project Earth' købte en grund til 65 millioner kroner i Fredericia

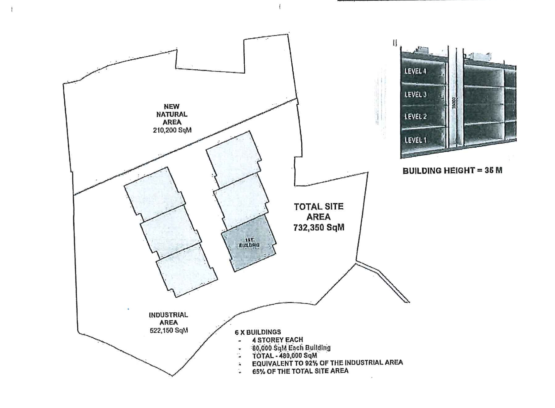
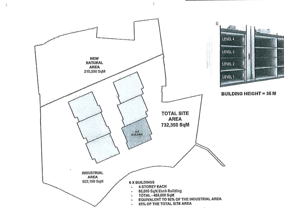
Google, Fredericia

Google har opkøbt en erhvervsgrund ved Tårup i udkanten af Fredericia.

Google har tidligere meddelt, at at virksomheden ikke har aktuelle planer om at opføre et datacenter på grunden.

Ifølge selskabet er grunden erhvervet som en fremtidssikring, der kan tages i brug, når - eller hvis - det bliver nødvendigt at udvide antallet af datacentre i Europa. 

Bliver Googles datacenter fuldt udbygget, har det med sine 480.000 bebyggede kvadratmeter potentiale til at blive det største af de tre datacentre. 

Grundstørrelse: 732.350 kvadratmeter 

Antal bebyggede kvadratmeter: I alt 480.000 kvadratmeter fordelt på seks bygninger af 40.000 kvadratmeter.

Grundpris: 65,9 millioner kroner. 

Byggehøjde: 28 meter, men med mulighed for at øge byggehøjden op til 35 meter. Maksimalt fire etager.

Læs også: Købskontrakt afslører: Fredericia Kommune risikerer stadig at Google trækker sig fra kæmpekøb af datagrund

Apple, Viborg

Det skabte stor opmærksomhed, da det i februar 2015 blev offentliggjort, at Apple vil opføre et datacenter på en mark ved byen Foulum udenfor Viborg.

Efter planen bliver dørene slået op til den første etape af datacenteret i 2018, mens det først ventes at være fuldt udbygget 2026.

Apples grund ved Viborg er den af de tre grunde, der har været billigst, selvom den med et areal på 1.000.000 kvadratmeter er den største. 

Stilling som chef for datacenteret er fortsat slået op på Apples hjemmeside.

Grundstørrelse: 1.000.000 kvadratmeter

Bebyggede kvadratmeter: 250.000 ved færdigbygning. Første etape er på 35.000 kvadratmeter

Grundpris: 23 mio 

Bygningshøjde: Højst 12 meter, og maksimalt to etager.

Læs også: Kristian Brøns Nielsen er Viborgs Apple-mand: "Næsten uanset hvad Apple har haft brug for i forbindelse med datacenteret, har selskabet bare kunne spørge"

Facebook, Odense

Facebooks erhvervsgrund ved Tietgenbyen i Odense er den mindste af de tre datacentergrunde, men til gengæld er det den dyreste.

Facebook har måttet punge ud med intet mindre end 68 millioner kroner for grunden. 

Når datacenteret står færdigt vil det være Facebooks andet datacenter i Norden. Det sociale medie har allerede etableret et større datacenter i den nordsvenske by Luleå.

Grundstørrelse: 508.000 

Bebyggede kvadratmeter: 184.000

Grundpris: 68 millioner kroner 

Antal bygninger: Tre datahaller samt bygninger til administration, køleanlæg og nødstrømsgeneratorer. Den ene datahal bliver på 39.000 kvadratmeter og yderligere to på 26.500 kvadratmeter.

Læs også:
Matz Engman fik Facebooks datacenter til Sverige: Derfor er tech-giganterne helt vilde med Skandinavien

Læses lige nu
    Computerworld Events

    Vi samler hvert år mere end 6.000 deltagere på mere end 70 events for it-professionelle.

    Ekspertindsigt – Lyt til førende specialister og virksomheder, der deler viden om den nyeste teknologi og de bedste løsninger.
    Netværk – Mød beslutningstagere, kolleger og samarbejdspartnere på tværs af brancher.
    Praktisk viden – Få konkrete cases, værktøjer og inspiration, som du kan tage direkte med hjem i organisationen.
    Aktuelle tendenser – Bliv opdateret på de vigtigste dagsordener inden for cloud, sikkerhed, data, AI og digital forretning.

    Infrastruktur | Frederiksberg

    Roundtable: Vækst, skalering og internationalisering i en ny virkelighed

    Vækst og internationalisering kræver it, der kan skifte retning uden at knække. Lær at designe løst koblede platforme, planlægge leverandørskift og skalere til nye markeder uden tab af tempo og kontrol. Deltag i dette lukkede roundtable med...

    Digital transformation | København

    Computerworld Summit 2026 - København

    Styrk din digitale strategi med konkret brug af AI og ny teknologi. Mød 250 it-professionelle, få indsigter, løsninger og netværk på én dag. Computerworld Summit i København viser hvordan teknologi skaber forretningsværdi – her og nu.

    Sikkerhed | Online

    NIS2 gjort enkelt - spar tid med Security Insights

    Få styr på NIS2 uden manuelt kaos. Lær at automatisere security assessments, styrke dokumentation og prioritere indsats. TDC Erhverv viser konkrete greb, der sparer tid og løfter compliance. Tilmeld og få 2 måneders gratis Security Insights.

    Se alle vores events inden for it

    Netcompany A/S

    Senior Network Engineer

    Københavnsområdet

    Capgemini Danmark A/S

    IGNITE Graduate Program 2026

    Københavnsområdet

    KMD A/S

    Projektleder

    Københavnsområdet

    Navnenyt fra it-Danmark

    Sharp Consumer Electronics har pr. 1. april 2026 ansat Daniel Eriksson som salgsdirektør for de nordiske lande. Han skal især beskæftige sig med at accelerere virksomhedens vækst i Norden. Han kommer fra en stilling som nordisk salgsdirektør hos Hisense. Han har tidligere beskæftiget sig med detailhandel, kommerciel strategi og markedsudvidelser med bemærkelsesværdige resultater til følge. Nyt job

    Daniel Eriksson

    Sharp Consumer Electronics

    Renewtech ApS har pr. 1. februar 2026 ansat Mads Linné Kaasgaard, 31 år,  som Marketing Specialist. Han skal især beskæftige sig med med at løfte Renewtechs brand og kommunikation yderligere ud globalt. Han kommer fra en stilling som Marketing Manager hos Induflex A/S. Han er uddannet fra Aalborg Universitet og har en Cand. Merc. i Sprog & International Virksomhedskommunikation. Nyt job

    Mads Linné Kaasgaard

    Renewtech ApS

    Renewtech ApS har pr. 15. marts 2026 ansat Per Forberg som Account Manager for Sustainable Relations. Han skal især beskæftige sig med etablere nye partnerskaber med henblik på ITAD og sourcing kontrakter med hostingvirksomheder og strategiske slutbrugere. Han kommer fra en stilling som Nordic Key Account Manager hos Tesa. Han er uddannet hos Lund University og har en MBA i Management. Han har tidligere beskæftiget sig med at styrke salgsaktiviteter og partnerskaber på tværs af nordiske markeder. Nyt job

    Per Forberg

    Renewtech ApS

    Norriq Danmark A/S har pr. 1. februar 2026 ansat Michael Benner som Senior Solution Architect. Han skal især beskæftige sig med Microsoft Fabric Accelerator Framework herunder videreudvikling af frameworket, kundeimplementeringer og pre-sales opgaver. Han kommer fra en stilling som løsningensarkitekt hos Columbus Data & AI. Han er uddannet Økonomistyring fra Aalborg Universitet. Han har tidligere beskæftiget sig med at være ansat i revisionsbranchen hos PwC Forensic og Deloitte Forensic. Nyt job

    Michael Benner

    Norriq Danmark A/S